重庆潼南龙兴寺正殿建筑形制初探
【类型】期刊
【作者】李浩鹏,陈祖林(重庆市潼南区文物保护管理所;重庆市文化和旅游发展委员会)
【作者单位】重庆市潼南区文物保护管理所;重庆市文化和旅游发展委员会
【刊名】重庆建筑
【关键词】 龙兴寺正殿;建筑形制;工艺手法;古建筑
【ISSN号】1671-9107
【页码】P30-32
【年份】2019
【期号】第10期
【摘要】潼南龙兴寺建筑形制独特,屋面平缓,上檐出深远,造型古朴,柱架用材粗壮厚重。殿内椽栿、檩、柱、枋等主要木构件均施有彩绘,抹灰间壁墙面尚保存有多幅古代精美的人物壁画,殿内壁画、彩绘色彩鲜艳、栩栩如生。现存建筑为单檐歇山顶加四周围廊,在重庆地区的明代建筑中,有明确纪年,且建筑形制、工艺手法别具,是研究西南地区古建筑非常重要的实例。该文对其建筑形制、主要特征作了初步探讨。
【全文】 文献传递
重庆潼南龙兴寺正殿建筑形制初探
A Preliminary Discussion on Architectural Form of the Main Hall of Longxing Temple in Tongnan,Chongqing
1 地理与历史沿革
龙兴寺位于重庆市潼南区小渡镇月山村4组的庙儿坡.唐玄宗开元十六年(公元728年)在今小渡镇设置铜梁县,治所在小渡镇月山村代场坝,龙兴寺即位于唐代铜梁县城遗址内.海拔高程238m,GPS坐标东经105°50'26.7",北纬29°57'20.4".
龙兴寺正殿坐北面南(图1),现为抬梁、穿斗式歇山顶木结构建筑,修建于高80cm的素面台基上,面阔三间,通面阔20.1m,进深三间,通进深13.15m,高8.2m,建筑面积284.63m2.寺院格局现基本已不复存在,仅完整保留了正殿(除正殿外,后殿只保留了面阔一间,进深三间的清代穿斗木建筑,本文暂不叙述).殿内上金槫墨书:"大明天顺四年(公元1460年)歳次庚辰正月初十□□□□黄道□造□□"(图2).民国版《潼南县志》记载:"龙兴寺,系古寺,在白鹿山,明万历丙子(1576年)僧圆宏培修有记,清乾隆二年(1737年)培修."另据明万历丙子(1576年)白鹿观碑记,记载:"去县四十里,接境有山,名白鹿,号为'龙兴',前有石阶石象,盖古迹也.时久无人修理."

图1 修缮后的正殿

图2 "大明天顺四年"纪年题记
龙兴寺正殿是重庆地区明代建筑中,彩绘、壁画保存较多和较为完好的古建筑.建筑形制、建筑结构、构件用材、建筑工艺手法,特别是大量精美的壁画、彩绘,是研究重庆地区明清建筑技术和古代绘画艺术难得的一处典型建筑,具有较高的价值.1992年经重庆市人民政府公布为重庆市文物保护单位,重庆直辖后,于2000年再次公布为重庆市文物保护单位.
2 建筑形制
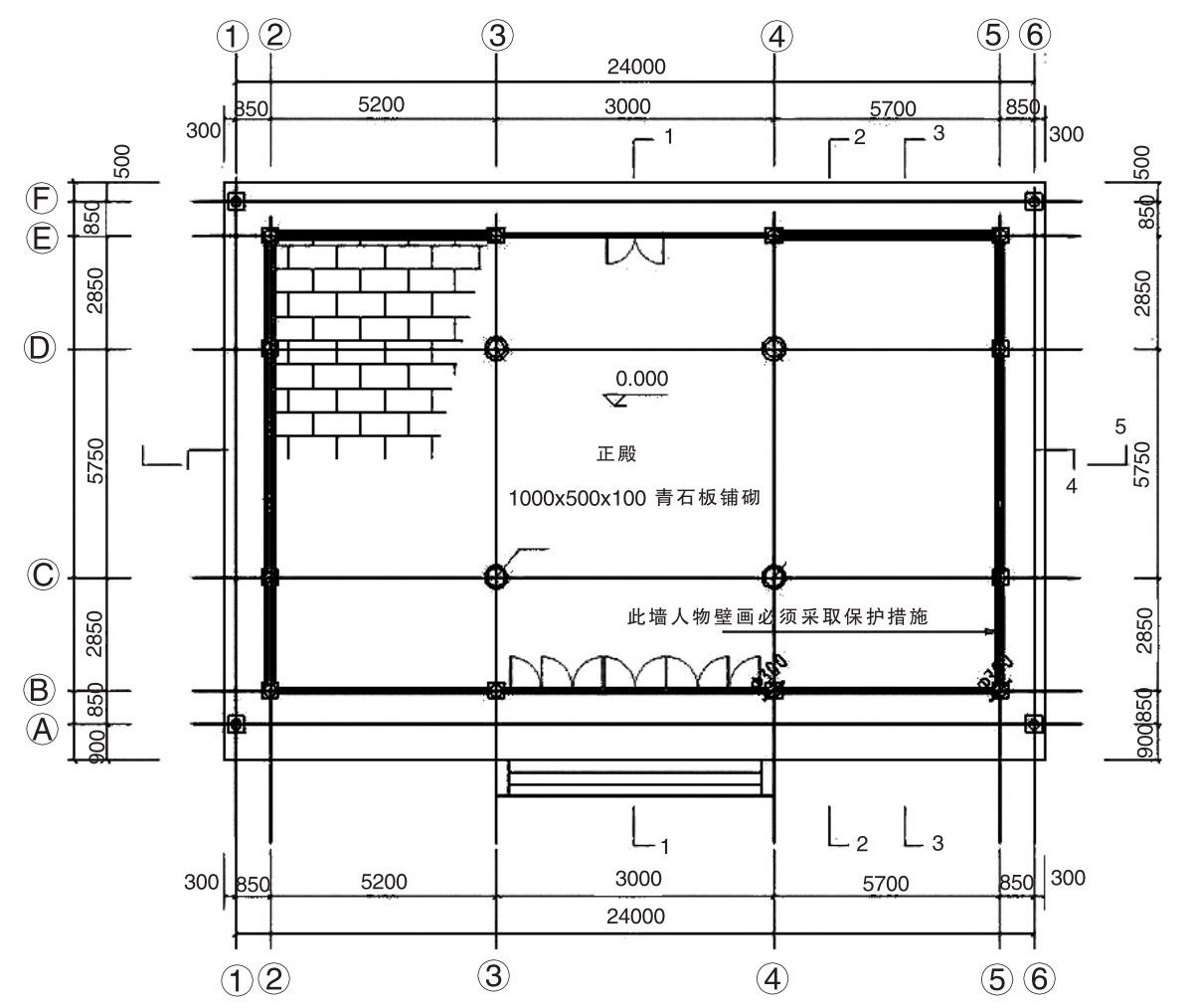
2.1 地盘
龙兴寺台基高度为檐柱高(4.67m)的1/6,近于明代以前法式规定.建筑面宽三间,当心间面宽7.0m,两次间均为5.70m,副阶周匝宽0.85m,前台阶宽1.75m.通面宽20.1m.进深三间,一间进深2.85m,二间进深5.75m,三间进深2.85m,后台阶宽1.35m,通进深13.15m,通高8.20m.按照宋《营造法式》,"凡定柱础取平,须更用真尺较之.其真尺长一丈八尺,广四寸,厚二寸五分."即面阔为18X31.2(1宋尺折算公制厘米)=5.62m,面阔与进深之比为100:65.7,与北京太庙神厨100:66.6、北京大慧寺大殿100:63.27相近[1],基本符合明代以前早期建筑制式(图3).
2.2 大木作
正殿原建筑形制为四椽栿三间身内双槽用四柱副阶周匝,彻上明造,平梁上用蜀柱.屋面荷载由柱头和梁上蜀柱托脊檩.当心间平柱至角柱有升起15.6cm,缓慢起翘,屋面举折坡度平缓.前后檐檩缝间水平距离11.45m,脊檩至檐檩缝高(举高)为3.92m.按照宋《营造法式》举屋之法,举高H=1/3L,即H=11.45X1/3=3.82m,龙兴寺举高3.92m,举高近法式规定[2].

图3 平面图
2.3 柱高、柱径
中国古建筑的高低,由木构架控制,檐柱(平柱)是决定整个建筑的主要构件,当心间檐柱高与柱径的尺寸,是均衡整栋建筑比例、达到美观的主要因素.龙兴寺正殿柱架共享立柱20根,其中檐柱12根,柱径0.30m,柱高4.67m,檐柱径与柱高比为1∶15.56.内柱4根,柱径0.4~0.46m,柱高6.00m,柱径与柱高比为1∶15~1∶13. 正殿柱高近于宋、元时期的1∶14,可见梭柱,无卷杀,无侧脚[3].按照宋《营造法式》卷五,"若厅堂等屋内柱,皆随举势定其长短,以下檐柱为则.若副阶廊舍,下檐柱虽长,不越间之广[4]."则檐柱(平柱)高应在间宽18尺之内,即18X31.2=5.62m,龙兴寺正殿檐柱(平柱)高4.67m,符合法式规定.由于出檐深远(2.1m),为承受屋面荷载,在四周檐角增加一廊柱,支承大角梁,形成0.85m宽的周匝.四周出檐深远,皆有飞椽,正面上檐出宽2.0m,下檐出宽1.75m.接近早期建筑檐出的柱高,为4/10~5/10(图4).

图4 剖面图
2.4 槫栿、铺作
无铺作,在平梁上置蜀柱支承脊檩,柱头和补间均未施铺作,檐柱上置圆形阑额下施矩形小额枋.在前后内额上施两组蜀柱,上出栱分别改建托中平檩.檐口由穿枋挑出的枋头上置一大斗,斗上托的挑枋上托牛脊檩,挑枋上再置一栱枋,栱枋前头托下平檩,栱后昂尾托中金槫,以此结构替代官式建筑的乳栿.在阑额、梁枋下多施以替木以减小梁枋跨度,使结构简洁、安全、整体稳定性好.这些简易民间工艺手法,不同于在柱头上置阑额,普柏枋上施柱头铺作、补间铺作、转角铺作,托下金槫和檐檩的官式手法.龙兴寺正殿的建造工匠,能在近600年前以简化檐口铺作传递屋面荷载,以其安全、简洁的结构方式,代替繁复的官式手法工艺,使龙兴寺正殿整体结构安全稳定,至今结构保存完整,是明代以前早期古建筑中难得一见的工艺手法.
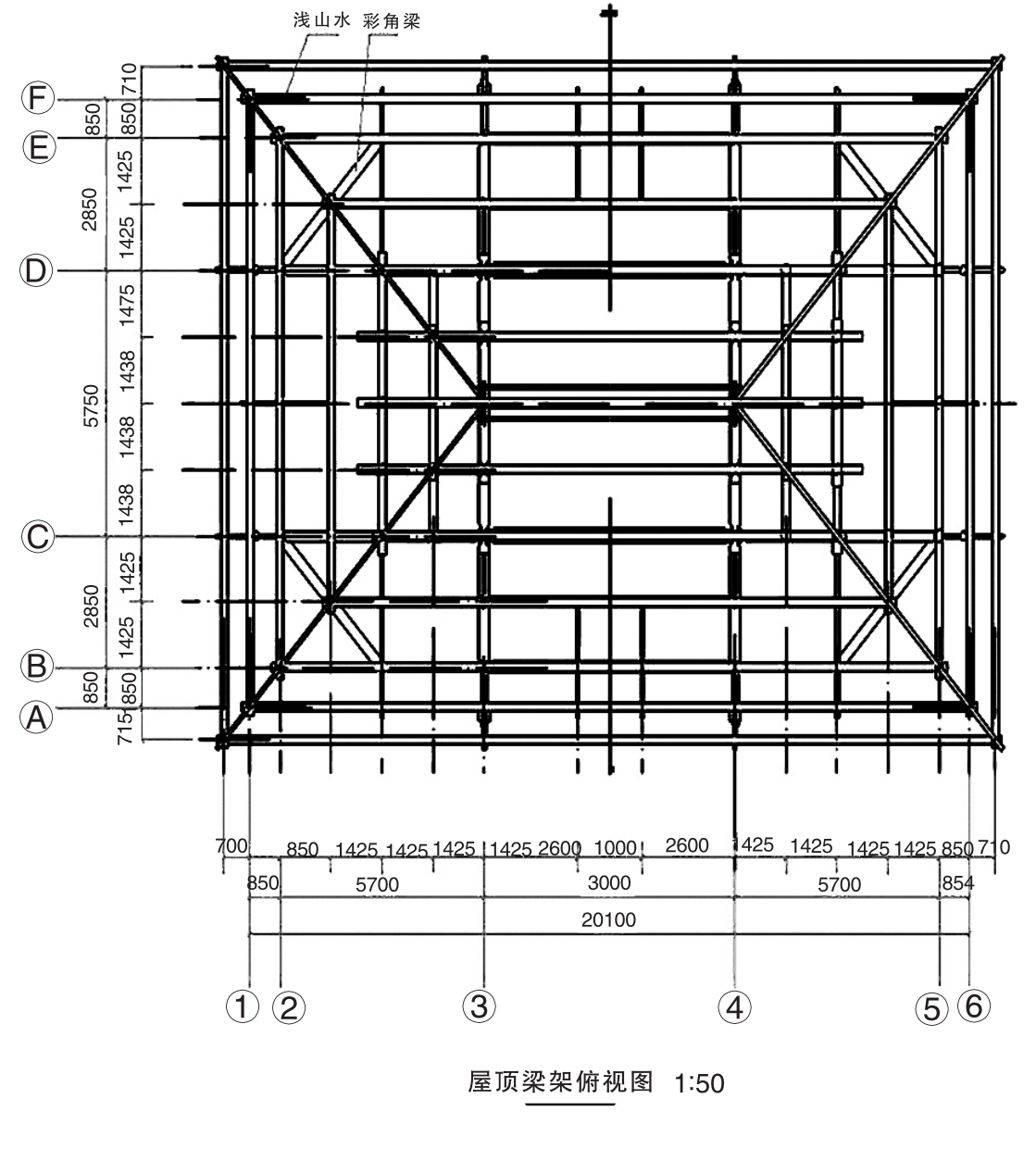
2.5 屋面结构
屋面较缓,具有明显的凹曲感,山面较陡,角脊曲线明显,四周飞檐,且出檐深远.在这次修缮中发现了续角梁和雷公柱,这是庑殿顶的特殊构件,歇山屋顶不应有此构件,后期修缮中歇山屋顶的添加构件痕迹十分明显(图5、图6).在殿内四周发现较多不同时期规格的灰布筒瓦、板瓦,少量琉璃瓦件残片.

图5 梁架俯视图

图6 续角梁
2.6 壁画、彩绘
壁画现存于正殿内外墙壁,除东面山墙外侧墙壁没有壁画外,其余七面墙壁均存有壁画(图7),每幅面积大小不一,计27幅,约47m2.以"朝元图"、"十二圆觉"菩萨等,佛、道教题材为主.除后经维修添加更换的构件外,所有梁架、柱架、檩枋等构件均施精美彩绘(图8).主要采用工笔重彩、线描与沥粉贴金相结合的技法,色泽鲜艳灿烂,经久不褪,又富于立体感,具有强烈的艺术感染力.

图7 壁画

图8 彩绘
3 结语
根据龙兴寺正殿的法式特征以及装饰内容等,可以考证龙兴寺始建或某一时期修缮时,为中国古建筑最高规格的庑殿顶建筑.大明天顺四年(公元1460年)是否为始建年代,有待更系统地研究和史料考证.唐玄宗开元六年(公元718年)将四川省彭州市"大云寺"诏号"龙兴寺",开元十六年(公元728年)在今潼南区小渡镇代场坝设置铜梁县,"龙兴寺"始名应该与唐玄宗或古铜梁县有关联,这仅是笔者的一种推测,需更多的实物及资料加以佐证.
图纸来源:
文章中所涉及图纸均来源于 "龙兴寺抢险加固设计方案".
[1]郭华瑜.明代官式建筑大木作[M].南京:东南大学出版社,2005:46.
[2]梁思成.梁思成全集(第七卷)[M].北京:中国建筑工业出版社,2001:157-158.?
[3]祁英涛.怎样鉴别古建筑[M].北京:文物出版社,1981:18.
[4](宋)李诫.营造法式[M].北京:商务印书馆,1954:102.

