四川平武报恩寺万佛阁彩塑制作工艺分析*
【类型】期刊
【作者】惠任,,冯圆媛,路智勇,傅倩丽,王展(西北大学文化遗产学院;清华大学建筑学院;中国砖石质文物保护国家文物局重点科研基地;西北大学国家教育部重点实验室;陕西省考古研究院;秦始皇兵马俑博物馆;陕西省文物保护修复研究院)
【作者单位】西北大学文化遗产学院;清华大学建筑学院;中国砖石质文物保护国家文物局重点科研基地;西北大学国家教育部重点实验室;陕西省考古研究院;秦始皇兵马俑博物馆;陕西省文物保护修复研究院
【刊名】考古与文物
【关键词】 四川平武;报恩寺;彩塑;制作工艺
【资助项】陕西省教育厅科研计划项目12JZ048资助
【ISSN号】1000-7830
【页码】P118-125
【年份】2019
【期号】第3期
【期刊卷】1;|7;|9
【摘要】四川平武报恩寺为全国重点文物保护单位,其中包括明代建筑、彩塑、壁画、板画、石碑等多种类型的文物,具有丰富的历史、艺术、科学和社会文化价值。万佛阁为报恩寺中彩塑数量最多的建筑,本文运用3D超景深显微镜、偏光显微镜、扫描电镜能谱仪、拉曼光谱分析仪、X射线衍射仪、激光粒度仪等科学仪器,对报恩寺万佛阁一层彩塑的材质及制作工艺进行了系统研究,为今后的保护修复工作奠定了研究基础。
【全文】 文献传递
四川平武报恩寺万佛阁彩塑制作工艺分析*
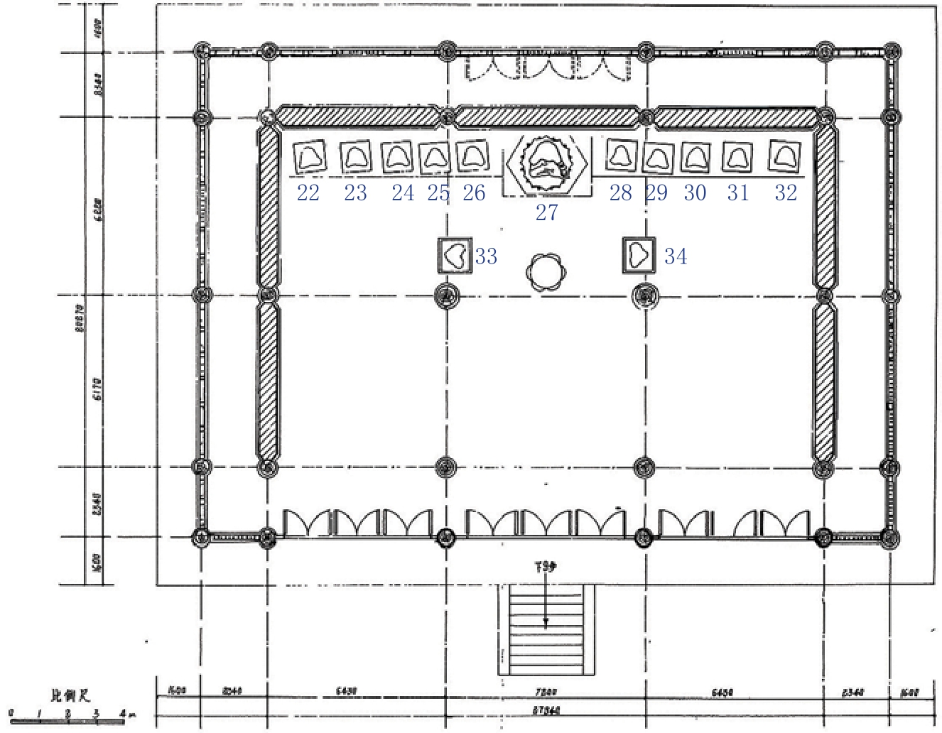
平武报恩寺,全称为“敕修报恩寺”,位于四川省绵阳市平武县东北角,占地27800余平方米,建筑面积约3500平方米[1],1996年被国务院公布为全国重点文物保护单位。平武报恩寺是我国保存最完整的明代古建筑群之一,为研究明代建筑的结构形制及艺术风格提供了重要实物资料。万佛阁位于报恩寺建筑群中轴末端,坐西向东,分上下二层。阁内一层有彩塑13尊,共计104.71m3,其中殿内正中供有佛祖说法彩塑一组11尊(主佛释迦牟尼和两侧“十大弟子”),主佛前还有2尊高大彩塑,为明代王玺、王鉴父子之像。经初步勘察,万佛阁彩塑存在颜料层脱落、地仗层脱落、裂隙、灰尘覆盖等病害,整体保存状况尚可;其主体结构为明代所制,色彩鲜艳、形象生动、姿态各异,工艺技法在四川地区具有一定代表性。本文利用3D超景深显微分析、偏光显微分析、扫描电镜能谱分析、拉曼光谱分析、X射线衍射分析等多种科学分析手段,对万佛阁内一层13尊彩塑的材质及工艺进行深入研究(图一、二;表一),为进一步探寻万佛阁彩塑的文物价值,了解其病害的形成机理,以及为后期彩塑的保护修复奠定基础。
一、样品与仪器
(一)样品
根据文物保护不改变原状和最少干预原则,对13尊彩塑进行分层采样。主要采用拾取法和粘取法对报恩寺万佛阁一层13 尊彩塑身上黑、白、黄、红、绿、蓝6种主要色系的颜料,和白粉层、白灰层、细泥层、粗泥层进行取样,选取其中12个典型样品进行综合分析。同时还取了少量当地土壤样品进行对比研究。样品详细信息见表二。号为KH-7700;金属卤素冷光源, 100倍下观察,201万动态像素。偏光显微镜为德国徕卡公司生产,型号为Leica DMLSP;使用Leica Wild体视显微镜辅助分离样品;单偏光、正交偏光500倍下观察。扫描电镜能谱仪为捷克TESCAN公司生产,型号为VEGA 3 XM;配美国伊达克斯公司Genesis 2000XMX型X射线能谱仪;使用钨灯丝电子枪,二次电子或背散射探头,500-1000倍下观察,分析电压为10-20kV。拉曼光谱分析仪为英国Renishaw公司生产,型号为invia;配备有Leica显微镜。氩离子激光器,激发光波长为514nm,物镜放大倍数为50、100倍,信息采集时间为10s,累加次数2~5次。X射线衍射仪为日本理学株式会社生产,型号为 SmartLab 9kw智能型;铜靶(Cu),D/teX Ultra探测器;狭缝IS=1mm,RS=1mm;电压为45kV ;电流为200mA。激光粒度仪为中国百特公司生产,型号为Bettersize2000LD;样品折射率为1.630-

图一 万佛阁一层彩塑分布图(文物编号为22-34)

图二 万佛阁一层彩塑分布示意图
(二)仪器
3D超景深显微镜为日本浩视公司生产,型0.100i;使用介质为水;介质折射率为1.333;分析模式为2.35-通用;分布类型为体积分布。
表一 万佛阁彩塑信息表

编号 位置 长 (m) 高 (m) 宽(m) 内容WFG-CS-1 WFG-CS-2 WFG-CS-3 WFG-CS-4台座南起第1尊 1.02 3.12 1.02 罗汉 台座南起第2尊 1.02 3.12 1.02 罗汉 台座南起第3尊 1.02 3.12 1.02 罗汉 台座南起第4尊 1.02 3.12 1.02 罗汉WFG-CS-5 台座南起第5尊 1.02 3.12 1.02 罗汉WFG-CS-6 台座南起第6尊 2.90 4.90 2.10 释迦摩尼佛WFG-CS-7 台座南起第7尊 1.02 3.12 1.02 罗汉WFG-CS-8 台座南起第8尊 1.02 3.12 1.02 罗汉WFG-CS-9 台座南起第9尊 1.02 3.12 1.02 罗汉WFG-CS-10 台座南起第10尊 1.02 3.12 1.02 罗汉WFG-CS-11 台座南起第11尊 1.02 3.12 1.02 罗汉WFG-CS-12 台座下殿中南 0.87 3.2 0.98 王玺之父WFG-CS-13 台座下殿中北 0.87 3.2 0.98 王玺
表二 万佛阁彩塑取样表

序号 样品编号 样品名称 采样部位1 2 3 4 WFG-6CS-1 黑色 一楼南起第6尊罗汉正面基座下部中段WFG-4CS-2 白色 一楼南起第4尊罗汉衣服右袖中部一楼南起第3尊罗汉左袖中部一楼南起第6尊罗汉基座下沿彩绘处 一楼南起第6尊罗汉下侧后部莲瓣处 一楼南起第5尊罗汉右袖侧面上部 一楼王玺背部衣物花纹处WFG-3CS-3 红色WFG-6CS-4 粉色5 WFG-6CS-6 黄色6 WFG-5CS-8 绿色7 WFG-13CS-10 蓝黑8 WFG-13CS-13 红色 一楼王玺背部衣物中部9 WFG-8CS-BF 白粉层 一楼南起第8尊彩塑基座颜料脱落处10 WFG-7CS-DZ 粗泥层 一楼北起第7尊罗汉正面基座右上角11 WFG-13CS-DZ 细泥层 一楼王玺基座正面左上角12 WFG-12-DZ 白灰层 一楼王玺父亲背面基座上边沿13 WFG-DZ 当地土 平武县南山半坡
二、结果与讨论
(一)彩塑制作结构
依据万佛阁彩塑前期勘察结果,并结合前人对历代壁画彩塑的研究成果[2~4],推断彩塑主要制作结构为:木骨架—草胎—泥质地仗—灰层—白粉层—颜料层。首先以木质框架做骨架,然后在其上缠以草绳并加草胎对木质骨架进行保护,同时起到增大黏土附着力的作用以方便挂泥 [5]。地仗以夹大量稻草的粗泥打底塑形,然后依次覆盖含少量稻草的细泥和掺有棉花的灰层,最后涂刷白粉层并在其上绘制颜料层。万佛阁一层彩塑共13尊,其建造年代相同,制作工艺相仿。根据少干预的文物保护原则,从部分彩塑残损处探入内窥镜可看到内部大致的基本结构,其木骨架为楠木材质,性能良好,不易因腐朽变形而影响彩塑稳定性[6],木骨架周围覆有草胎。以13号彩塑为例,绘制出示意图(图三)。

图三 万佛阁彩塑结构组图

图四 万佛阁彩塑颜料偏光显微照片X500
表三 万佛阁彩塑颜料激光拉曼分析结果

序号 样品编号 样品名称 分析结果1 WFG-6CS-1 黑色 炭黑+青金石2 WFG-4CS-2 白色 石膏+石英3 WFG-3CS-3 红色 朱砂4 WFG-6CS-4 粉色 石英+朱砂5 WFG-6CS-6 黄色 铁黄6 WFG-5CS-8 绿色 人造氯铜矿7 WFG-13CS-10 蓝黑 酞菁蓝8 WFG-13CS-13 红色 朱砂
(二)彩塑制作材质
1.颜料层分析
取万佛阁一层彩塑的黑色、白色、红色、粉色、蓝色、黄色、绿色9个样品分别进行偏光显微分析及激光拉曼分析,分析结果见图四和表三。
结果显示,黑色颜料成分为炭黑,白色颜料成分为石膏夹石英,红色颜料成分为朱砂,粉色颜料为朱砂与石英调制而成,黄色颜料为铁黄,绿色颜料为人造绿铜矿,12、13号彩塑上的蓝色颜料为现代染料酞菁蓝,推测12、13号彩塑有后人补绘痕迹。
2.白粉层分析
使用扫描电镜能谱分析,白粉层所含主要元素为 C、O、S、Al、Si、Na、Mg、K、Ca,其中S和Ca元素含量较高(图五)。
进一步使用X射线衍射分析,发现白粉层中含有石英、钠长石、伊利石、斜绿泥石、石膏和草酸钙石等主要矿物(图六)。由于石膏是一种自然界分布较广的白色矿石,在我国石窟壁画、建筑壁画和墓葬壁画的颜料层和白粉层中极为常见[7,8],所以判断报恩寺万佛阁彩塑白粉层中的主要成分为石膏,其他成分来源于伴生杂质和下层地仗土。

图五 万佛阁彩塑白粉层SEM能谱分析结果

图六 万佛阁彩塑白粉层XRD分析结果

图七 万佛阁彩塑地仗灰层SEM能谱分析结果

图八 万佛阁彩塑地仗灰层XRD分析结果

图九 灰层纤维超景深照片100×分析结果

图一〇 灰层纤维SEM照片1000×分析结果
3.地仗层分析
(1)成分分析
灰层:由肉眼看,万佛阁彩塑地仗表面灰层厚度为3~5mm,为青灰色,内加白色、细长、柔软植物纤维。扫描电镜能谱分析灰层内含C、O、Fe、Al、Si、Na、Mg、K 等元素,其中Al、Si含量较高(图七);X射线衍射分析发现其主要物相组成为石英、白云母、钙长石和斜绿泥石等,由于斜绿泥石的存在,使得灰层显青灰色(图八);显微观察内含植物纤维具有天然扭转,横截面呈不规则腰圆形,并含有中腔,有老化现象(图九、一〇),与现代棉纤维样品纤维结构相似,符合棉纤维的显微形态特征(图一一)。棉是中国古代壁画白灰地仗中常用的天然植物纤维,起到加固地仗、防止其收缩开裂的作用。

图一一 现代棉纤维SEM照片1000×

图一二 万佛阁彩塑地仗泥层SEM能谱分析结果

图一三 万佛阁彩塑地仗泥层XRD分析结果

图一四 泥层纤维超景深照片100×

图一五 泥层纤维SEM照片1000×

图一六 稻草纤维SEM照片1000×

图一七 平武当地土SEM能谱分析结果

图一八 平武当地土XRD分析结果
泥层:泥层分细泥层和粗泥层上下两部分,前者较细腻,内夹杂少量较粗植物纤维,后者颗粒稍大,内含纤维较多。经扫描电镜能谱分析,两层泥质地仗元素组成基本一致,且与灰层主要元素相同(图一二); X射线衍射仪分析发现两泥层的主要物相组成为石英、白云母、钠长石、绿泥石等(图一三);显微观察内夹杂纤维细胞一般都为细且短,两端多呈尖削状,胞腔较小,壁上有纹孔(也有无纹孔)和节纹(图一四、一五),形态与典型的稻草结构一致(图一六)[9]。
为了进一步探寻地仗成分来源,我们在平武当地(南山坡)采集了一些深埋泥土进行成分对比研究(图一七、一八)。从分析结果来看,当地土的元素和物相组成和报恩寺彩塑地仗成分极为相似,由石英、长石、白云母等矿物组成,为今后筛选彩塑填补、灌浆等修复用材奠定了前期研究基础。

图一九 万佛阁彩塑地仗层白灰层粒度成分图

图二〇 万佛阁彩塑地仗层细泥层粒度成分图

图二一 万佛阁彩塑地仗粗泥层粒度成分图

图二二 报恩寺当地土粒度成分图
(2)粒度分析
为探究地仗各层成分的粒径分布,用激光粒度仪分别对当地土样品、粗泥层样品(WFG-7CS-DZ)、细泥层样品(WFG-13CS-DZ)、白灰层样 品(WFG-12CSDZ)进行测试。分析结果按照我国常用粒组分类进行统计,详见图一九、二〇、二一、二二和表四。
分析结果显示,灰层的粒径主要分布于0.0007~0.8mm的范围内,涵盖了黏粒组、粉粒组(细粒组)和砂粒组(粗粒组),其中粉粒组和黏粒组占58.23%,砂粒组占41.77%,中值粒径为0.05mm。细泥层、粗泥层和当地土三者粒径区间分布大体相同,粒径均在0.0005-0.3mm的范围内,涵盖了各级粉粒组和细砂组;从数据上看,泥层粒径比灰层更细,94%以上为细粒组,中值粒径为0.01 mm,其中当地土最细,细泥和粗泥次之;结合成分分析结果,细泥层与粗泥层土质相似,虽与当地土之间存在微小差异(与采样部位和随机性有关),但总体上可以判断源于就地取材。
由于细泥层和粗泥层中混有稻草,为测其稻草的占比又对样品进行了筛分称重,得出粗泥层样品中稻草含量为18.77%,细泥层样品中稻草含量为3.27%,结合粒度分析和成分分析,说明粗泥层和细泥层土质相似,仅稻草含量较高。
表四 地仗颗粒级配统计表(W%)

粗砂 中砂 细砂 粗粉粒 细粉粒 黏粒d≥2 0.5<d≤2 0.25<d≤0.5 0.075<d≤0.25 0.01<d≤0.075 0.005<d≤0.01 d≤0.005/ / / 3.85 51.35 16.5 28.93/ / / 6.23 53.48 15.05 25.24/ / / 5.62 50.36 15.24 28.78/ 1.85 8.96 30.96 39.19 8.72 10.32当地土细泥层粗泥层灰层含量(%)粒径(㎜)样品名称
三、结论
报恩寺壁画彩塑制作精良,是不可多得的明代艺术佳作,有着珍贵的文物价值和社会、文化价值。本文通过现状勘察和仪器分析,对报恩寺万佛阁一层彩塑的制作材质和工艺进行了综合研究,得出以下结论:
(1)彩塑制作结构:从内至外依次为木质骨架—草胎—泥质地仗—灰层—白粉层—颜料层。
(2)彩塑制作材质:①颜料层使用了黑、白、黄、红、绿、蓝6种主要色系的颜料,其中黑色为炭黑,白色为石膏夹石英,红色为朱砂,粉色为朱砂夹石英,黄色为铁黄,绿色为人造绿铜矿;12、13号彩塑上的蓝色颜料为现代染料酞菁蓝,判断12、13号彩塑有后人补绘痕迹。②白粉层主要成分为石膏。③灰层主要成分为石英、白云母、钙长石和斜绿泥石等,由于斜绿泥石的存在导致灰层成青灰色;加筋材料为棉。④泥质地仗分粗细两层,主要成分为石英、白云母、钠长石、绿泥石等;粗泥层含有较多的稻草纤维;泥质地仗与当地土的成分及粒径分布相似,判断其为就地取材。
[1]向远木.四川平武明报恩寺勘察报告[J].文物,1991(4):1-19+97-99.
[2]赵林毅,李燕飞,于宗仁,李最雄. 丝绸之路石窟壁画地仗制作材料及工艺分析[J].敦煌研究,2005(4):75-82.
[3]李燕飞,王旭,赵林毅,范宇权,傅鹏,李波,杨韬.山西介休后土庙彩塑的制作材料及工艺分析[J].敦煌研究,2007(5):54-58+118.
[4]邵永梅.一尊彩绘泥塑侍女像的制作工艺浅析[J].文博,2016(4):97-104.
[5]杨秋颖.古寺庙彩绘泥塑宗教造像传统工艺研究体系探讨[J].文博,2015(4):48-55.
[6]马赞峰,等.温州博物馆馆藏北宋白象塔彩塑制作材料、工艺及病害分析研究[J].敦煌研究,2002(5).
[7]R.J.Gettens. The Materials in the Wall Paintings of Bamiyan[J]. Afghanistan, Technical Studies, Vol.6,1938.
[8]于宗仁,赵林毅,李燕飞,李最雄.马蹄寺、天梯山和炳林寺石窟壁画颜料分析[J].敦煌研究,2005(4).
[9]胡可佳.陕西安康紫阳北五省会馆壁画制作工艺及材质分析研究[D].西北大学硕士论文,2013.

